ÆíÁý : 2025.10.23 (¸ñ) 01:02
°ÅÁ¦Áß¾Ó °ø°øÇϼö󸮽ü³ 3´Ü°è Áõ¼³»ç¾÷ Âø°ø
1ÀÏ 1¸¸3000§© Çϼö 󸮡¦°íÇöõ, °íÇüÇ× µî ¼öÁú°³¼± ±â¿©
  • ÀԷ³¯Â¥ : 2018. 07.18. 15:23
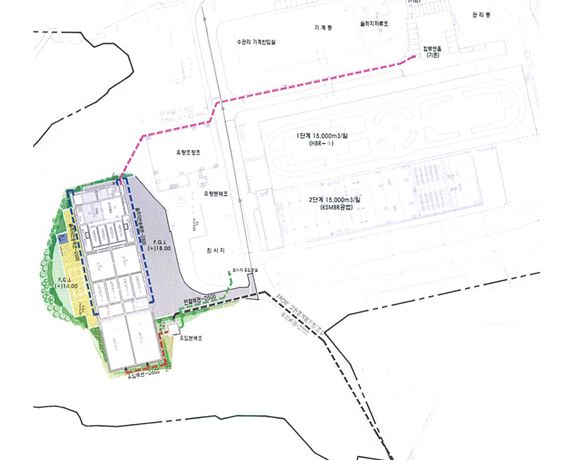
°ÅÁ¦Áß¾Ó °ø°øÇϼö󸮽ü³(ÀÌÇÏ Çϼö󸮽ü³) 3´Ü°è Áõ¼³»ç¾÷ÀÌ ¿¬¸»¿¡ Âø°øÇØ ¿À´Â 2022³â¿¡ ¿Ï°øµÈ´Ù.

°ÅÁ¦½Ã¿¡ µû¸£¸é ÀÌ Çϼö󸮽ü³Àº ¿¬ÃÊ¸é ¿Àºñ¸® 785 ÀÏ¿ø 1¸¸¿©§³ ºÎÁö¿¡ ÃÑ»ç¾÷ºñ 488¾ï9200¸¸ ¿øÀÌ ÅõÀԵǸç, ½ÅÇöÁö±¸ (ÀåÆò¡¤°íÇö¡¤»ó¹®¡¤¼ö¾çµ¿)¿Í ¿¬Ãʸé Çϼö 1ÀÏ 1¸¸3000§©¸¦ ó¸®ÇÒ ¼ö ÀÖ´Ù.

¿À´Â 12¿ù¿¡ Âø°øÇÏ´Â Çϼö󸮽ü³Àº 2019³â 49¾ï¿© ¿ø ÅõÀÔ¿¡ ÀÌ¾î ¿¬Â÷»ç¾÷À¸·Î ÁøÇàµÈ´Ù.

ÀÌ Çϼö󸮼³¿¡´Â KSMBR»çÀÇ °ø¹ýÀÌ »ç¿ëµÈ´Ù.

´çÃÊ ½Ã´Â 2017³â¿¡ 3¾ï6000¸¸ ¿øÀ» µé¿© ±âº» ¹× ½Ç½Ã¼³°è¿ë¿ªÀ» ¸¶¹«¸® Çϱâ·Î ÇßÀ¸³ª, ȯ°æºÎ¿ÍÀÇ ¿¹»ê ¹®Á¦·Î 1³â °¡·® Âø°øÀÌ ´Ê¾îÁö°Ô µÆ´Ù.

½Ã´Â ±âÁ¸ ÁذøµÈ 2´Ü°è »ç¾÷(½Ã¼³¿ë·® 1ÀÏ 3¸¸§© ó¸®)À» ¼ö³â° ¿î¿ëÇϰí ÀÖ´Ù.

Á¡Â÷ 󸮱¸¿ª³» ±Þ°ÝÇÑ Àα¸ Áõ°¡·Î ÀÎÇÑ Áõ¼³»ç¾÷ÀÌ Àý½ÇÇÏÀÚ, ½Ã´Â ÇϼöµµÀÇ È¿À²ÀûÀÎ °ü¸®¿Í °øÁßÀ§»ý Çâ»óÀ» À§ÇØ Áö³­ 2016³âºÎÅÍ 3´Ü°è »ç¾÷ÀÇ ÀýÂ÷¸¦ ¹â¾Ò´Ù.

°ÅÁ¦½Ã °ü°èÀÚ´Â "3´Ü°è Áõ¼³»ç¾÷ÀÌ ¿Ï°øµÇ¸é, 1ÀÏ 4¸¸3000§©ÀÇ Çϼö 󸮰¡ °¡´ÉÇØ Áø´Ù. 󸮱¸¿ª³» ´ë´ÜÁö ¾ÆÆÄÆ®ÀÇ Çϼö±îÁö Á÷¹è°üÀ¸·Î ¿¬°áÇÏ¸é °íÇö¡¤¼ö¿ùõ°ú °íÇöÇ×ÀÇ ¼öÁúÀÌ Å©°Ô °³¼±µÉ °ÍÀ¸·Î °üÃø µÈ´Ù"°í ¸»Çß´Ù.


¼­ÁøÀÏ ±âÀÚ newsmorning@daum.net        ¼­ÁøÀÏ ±âÀÚÀÇ ´Ù¸¥ ±â»ç º¸±â



ÀÌ ±â»ç¿¡ ´ëÇÑ µ¶ÀÚ ÀÇ°ß (0 °³)
µ¶ ÀÚ ÀÇ °ß Á¦ ¸ñÀÌ ¸§ÀÛ¼ºÀÏ
Ãֽżø Á¶È¸¼ø µ¡±Û¼ø